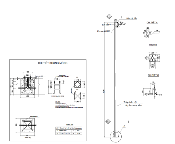
Bách Hóa Inox xin chia sẻ bản vẽ cột camera bằng thép cao 5 mét, với thông số cụ thể như sau.
Bản vẽ cột camera bằng thép file PDF
Thông số kỹ thuật:
- Kích thước: Đường kính x chiều cao = 110×5000 mm
- Kích thước bản mã: 300×300 mm
- Độ dày thân cột: 2 mm
- Độ dày bản mã: 15 mm
Nguồn: Bách Hóa Inox
