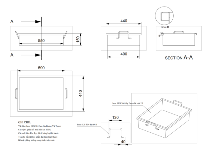
Bách Hóa Inox xin chia sẻ bản vẽ khay chứa Paste làm bằng inox 304 với thiết kế của khách hàng. Sản phẩm này được đặt hàng theo yêu cầu sao cho phù hợp với nhu cầu thực tế. Còn chúng tôi chỉ gia công theo yêu cầu.
Kích thước khay chưa Paste Dài x rộng x cao = 590 x 440 x 150 mm
Với những yêu cầu cao về kỹ thuật cũng như chất lượng sản phẩm.
Inox 304 của Hoàng Vũ hoặc Posco
Tay cầm phải làm bằng inox đặc 10 mm
Các mối hàn phải đẹp và mài nhẵn bóng

Bản vẽ Khay chứa paste file PDF
Nguồn: Bách Hóa Inox







