Xin chào mọi người lại là Đại đây!
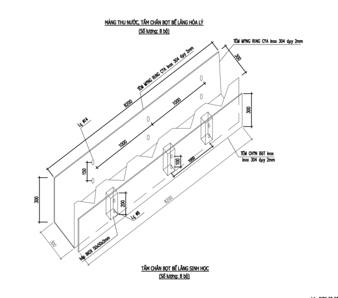
Hôm nay mình xin chia sẻ bản vẽ máng răng cưa và tấm chắn bọt file PDF sản xuất theo yêu cầu của khách hàng. Mọi người cùng theo dõi nhé.
Nếu anh em nào có nhu cầu về dòng sản phẩm này vui lòng liên hệ với mình.
Bản vẽ Máng răng cưa, tấm chắn bọt file PDF

Hình ảnh máng răng cưa trong bản vẽ

Hình ảnh thực tế các dòng sản phẩm máng răng cưa
Nguồn: Bách Hóa Môi Trường








