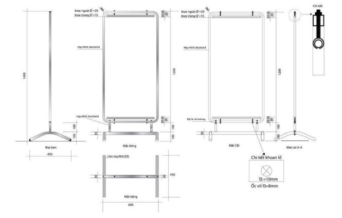
Bách Hóa inox xin xin chia sẻ bản vẽ standee inox được dùng cho các nhãn hàng, cửa hiệu muốn quảng bá hình ảnh thương hiệu quảng cáo.
Thông số kỹ thuật
- Inox khung chính: đường kính 21 mm
- Inox khung phụ: đường kính 15 mm
- Hộp inox khung chính: 20×20 mm
- Inox 304
- Bề mặt bóng
- Kích thước phủ bì: 1400x600x450 mm

Nguồn: Bách Hóa Inox
