Thiết bị lọc bụi Cyclone là một thiết bị vô cùng hữu dụng có hình dạng đặc trưng và thường được gia công bằng kim loại. Bách Hóa Inox là đơn vị chuyên gia công theo yêu cầu cho các đơn vị có nhu cầu đặt hàng theo yêu cầu. Đặc biệt là các đơn vị hoạt động trong lĩnh vực môi trường. Quý khách hàng có nhu cầu gia công thiết bị lọc bụi Cyclone vui lòng liên hệ với chúng tôi để được hỗ trợ.
1. Năng lực của công ty
Là một đơn vị gia công inox có kinh nghiệm tại Hà Nội, công ty Bách Hóa Môi Trường luôn chú trọng công tác đào tạo công nhân, đầu tư máy móc thiết bị phục vụ sản xuất. Đến thời điểm tháng 3 năm 2023, năng lực của công ty đã đạt được các mốc như sau:

- 20+ công nhân có tay nghề cao, được cấp chứng chỉ do cơ quan quản lý nhà nước cấp.
- Máy hàn laser tự động: 03 chiếc
- Máy cắt laser tự động: 01 chiếc
- Mát chấn gấp tự động: 04 chiếc
- Máy uốn tôn tự động: 01 chiếc
- Máy cắt ống tự động: 01 chiếc
- Máy chặt: 01 chiếc
- Máy hàn và các thiết bị cơ khí cơ bản khác
- 2 xe ô tô
Công ty còn có nhiều sản phẩm được báo chí việt nam giới thiệu như những sản phẩm tốt nhất trong lĩnh vực đó. Thường xuyên được giới thiệu tại các trang báo hàng đầu trong các lĩnh vực xây dựng, y tế, môi trường….
2. Gia công Cyclone cần chú ý những điểm gì
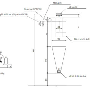
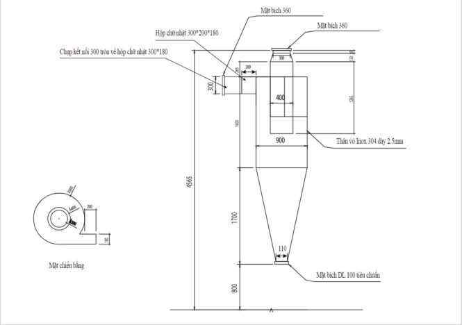
Cyclone là một thiết bị không khó nhưng khó ở phần tính toán thiết kế, thiết kế để hiệu quả tách bụi ra khỏi không khí ở mức cao và khả năng loại bỏ bụi có kích thước nhỏ.

Một thiết kế tối ưu có thể tách được trên 90% lượng bụi ra khỏi dòng khí, nhưng thiết kế không tối ưu thì hiệu quả làm việc giảm 1 nửa.
Để việc thiết kế trở nên tối ưu và đạt hiệu suất cao. Khách hàng cần cung cấp cho các đơn vị thiết kế những thông số cơ bản sau:
- Ngành nghề sản xuất
- Đặc điểm của bụi
- Lưu lượng mong muốn
- Diện tích nhà xưởng
Chúng tôi hiện chỉ đảm nhận công tác gia công theo yêu cầu, chưa thể tính toán chính xác kích thước của sản phẩm nên rất mong hợp tác với các đơn vị chuyên cung cấp các dịch vụ về xử lý khí thải.
3. Phương án tính giá thành phẩm
Là đơn vị gia công kim loại đã nhận nhiều công trình với khối lượng công trình khác nhau và phương pháp thi công khác nhau.
Về cơ bản giá thành sản phẩm có thể tính toán như sau:
- Thi công tại xưởng: Chở về công trình lắp đặt chúng tôi tính giá 120.000 VNĐ/1 kg inox thành phẩm. Khi gia công tại xưởng sẽ dựa vào thông số kỹ thuật để báo giá sơ bộ trước cho khách hàng. Sau khi hoàn thiện sẽ cân thực tế và tính tiền cho khách hàng.
- Phương án thi công tại công trình: Khi điều kiện không cho phép thi công tại xưởng mà phải làm tại chỗ. Đơn giá sẽ là 200.000 – 300.000 VNĐ/kg inox thành phẩm. Bởi vì phụ thuộc rất nhiều vào điều kiện làm việc, chi phí vận chuyển, nhân công, thời tiết….
Lưu ý: Khách hàng có nhu cầu đặt hàng vui lòng liên hệ với chúng tôi để được hỗ trợ.
4. Khách hàng đã gia công cyclone của Bách Hóa Môi Trường
Danh sách các đơn vị đã đặt hàng hoặc chúng tôi là nhà thầu phụ thi công cyclone inox tại.
- Công ty TOTO KCN Thăng Long, F1, Kim Chung, Đông Anh, Hà Nội, Việt Nam
- Nhà Máy Terumo Lô 44 A-B-C Quang Minh, KCN Quang Minh, Mê Linh, Hà Nội, Việt Nam
- Công Ty Cổ phần UIL Việt Nam KCN, Quế Võ, Bắc Ninh, Việt Nam
- Hanwha Vision Lô 02-03 Khu Công Nghiệp, Bắc Ninh, Việt Nam
5. Thông tin liên hệ của công ty
Thông tin liên hệ làm việc của Công ty TNHH Thương mại Bách Hóa Môi Trường
- Trụ sở tại Hà Nội: Số 11, ngõ 108 Phố Nguyễn Lân, Phường Phương Liệt, Quận Thanh Xuân, Thành phố Hà Nội, Việt Nam
- Địa chỉ nhà xưởng sản xuất: Số 1 đường Cựu Quán, xã Đức Thượng, huyện Hoài Đức, thành phố Hà Nội
- Số điện thoại của tôi: 0986.814.283
- Email: quangdaicm2@gmail.com
6. Chính sách bán hàng
Là một đơn vị gia công inox chuyên nghiệp tại Hà Nội. Chính sách bán hàng của chúng tôi đối với từng hợp đồng cụ thể như sau:
Tổng thầu thiết kế – thi công – lắp đặt
- Đặt cọc 30%
- Thiết kế
- Thi công – nghiệm thu từng giai đoạn
- Nghiệm thu trang thiết bị tại kho – thanh toán 70%
- Lắp đặt hoàn thiện – nghiệm thu – thanh toán 30%
Cung cấp thiết bị
- Đặt cọc 30%
- Nghiệm thu thiết bị tại kho – Thanh toán 100%
- Vận chuyển
7. Hình thức mua hàng
Với nhiều kênh bán hàng khác nhau nhưng chúng tôi khuyến khích khách hàng có những trải nghiệm thực tế trước khi mua hàng.
Mua hàng trực tiếp
- Quý khách được tư vấn – trao đổi kỹ thuật tại văn phòng công ty
- Được tham quan các dự án thực tế đã triển khai
- Tận mắt thấy – tay sờ các trang thiết bị tại kho
Mua hàng online
- Liên hệ qua số hotline của công ty
- Nhận báo giá và trải nghiệm online qua các bài viết trên website và video trên Youtube
- Đặt hàng
8. Hình thức thanh toán
Trực tiếp thanh toán bằng tiền mặt hoặc chuyển khoản
9. Hình thức vận chuyển lắp đặt
- Đóng gói sản phẩm đúng tiêu chuẩn quốc tế
- Hỗ trợ vận chuyển đến tận chân công trình bằng xe tải chuyên dụng, có đội ngũ kỹ thuật đi theo để bàn giao trang thiết bị
- Lắp đặt theo yêu cầu của khách hàng và các bản thiết kế đã được thống nhất từ trước
- Hỗ trợ lắp đặt trong trường hợp khách hàng yêu cầu tự lắp.
- Tư vấn – hướng dẫn vận hành – chìa khóa trao tay cho người tiêu dùng một cách thuần thục nhất.
10. Hình thức chính sách bảo hành
Bảo hành 24 tháng đối với các sản phẩm chính hãng do công ty cung cấp tại thị trường Việt Nam.
Bảo hành sản phẩm khi phát sinh lỗi tối đa 24h kể từ khi nhận được thông báo của khách hàng.
Bảo hành mọi lỗi do nhà cung cấp
Hỗ trợ bảo hành mọi lỗi do người sử dụng sai quy trình


















daibq –
Gia công Cyclone tính giá theo kg inox thành phẩm