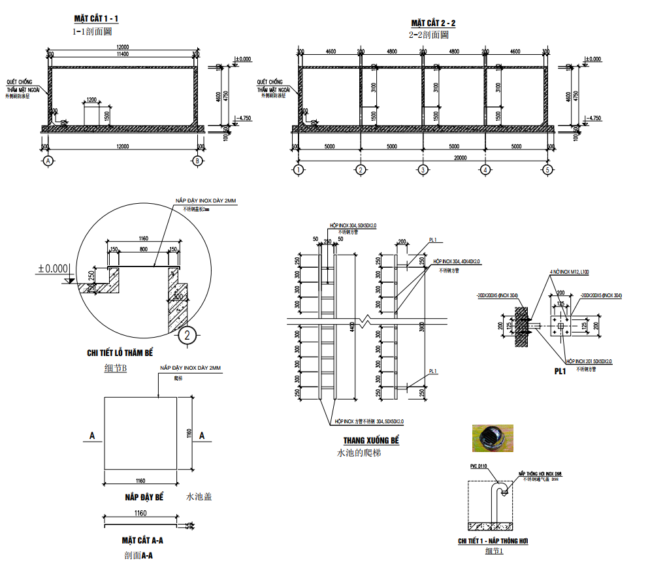
Bách Hóa Inox xin chia sẻ bản vẽ bể nước PCCC (phòng cháy chữa cháy) với các thiết bị bằng inox như sau:
Tải xuống bản vẽ bể nước pccc tại đây 
+ Nắp đậy inox dày 2 mm
+ Thang xuống bể bằng inox
+ Ống thông hơi bằng inox
Mời mọi người cùng theo dõi nhé.
Xem thêm: Tổng hợp mẫu mã và giá thành của nắp bể inox
Nguồn: Bách Hóa Inox
