Bể tách mỡ 2 ngăn được đánh giá là sản phẩm vô cùng hữu dụng để ngăn ngừa, giảm thiểu tối đa các hiện tượng tắc nghẽn đường ống thoát nước do mỡ thừa gây ra. BTM-2N được chế tạo để phục vụ cho các đối tượng có lưu lượng thải nước vừa và nhỏ.
1. Giới thiệu chung bể tách mỡ 2 ngăn – model BTM-2N
Là một loại bể ít được sử dụng, bể tách mỡ 2 ngăn thường chỉ được gia công chế tạo theo yêu cầu của chủ đầu tư, phục vụ cho những khu vực hạn chế về không gian lắp đặt. Và cực chẳng đã mới phải lựa chọn thiết kế này.
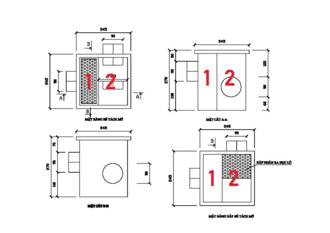
Nhiệm vụ cụ thể của từng ngăn như sau:
+ Ngăn số 1: Loại bỏ rác thải kích thước lớn khỏi hệ thống đường ống thoát nước bằng giỏ rác. Đã là bể tách mỡ thì bắt buộc phải có cái giỏ rác, nếu không hiệu quả làm việc của bể giảm đi một nửa vì không gian làm việc bên trong bể bị rác chiếm hết.
+ Ngăn số 2: Là ngăn tách mỡ chính của bể, ngăn này có nhiệm vụ loại bỏ mỡ ra khỏi nước nhờ vào cấu tạo đặc biệt bẫy mỡ ra khỏi nước thải. Ở cuối ngăn này lại được chia làm 2 ngăn nhỏ xíu. Một ngăn có tách dụng hỗ trợ quá trình chảy nước sạch ra bên ngoài.

Hình ảnh chi tiết của sản phẩm bể tách mỡ 2 ngăn
| Model |
BTM-2N |
| Thể tích | Tùy chọn |
| Kích thước tiêu chuẩn | Tùy chọn |
| Vật liệu sản xuất | Inox 304 |
| Độ dày | 1 mm, 2 mm, 5 mm |
| Cơ chế ngăn mùi | Bằng nước or bằng gioăng cao su |
| Số ngăn | 2 |
| Số lượng giỏ rác | 1 |
| Số lượng vách ngăn | Tùy chọn |
| Xuất xứ | Bách Hóa Môi Trường |
| Bảo hành | 03 tháng |
2. Đặc trưng riêng của sản phẩm BTM-2N
Để phân biệt với các dòng sản phẩm cũng như model khác, sản phẩm này có những đặc điểm riêng – phù hợp với nhu cầu của cơ bản của các hộ gia đình như sau:
2.1 Chất lượng và giá thành phù hợp nhất
Inox 304 có chất lượng cao và hoàn toàn bền vững trong điều kiện thông thường. Giá thành lại không quá cao như các loại inox 316…
Là loại sản phẩm được dùng nhiều nhất trong thời điểm hiện tại với nhiều ưu điểm:
+ Bền vững với các loại hóa chất tẩy rửa thông thường.
+ Độ bền vững, tính dẻo dai cao.
+ Bề mặt inox có sáng bóng cao phù hợp với các nhu cầu cao cấp.
+ Dễ gia công chế tạo dễ dàng cắt ghép, uốn, hàn nối với nhau.
Xem thêm: Danh mục sản phẩm bể tách mỡ của Bách Hóa Môi Trường
2.2. Sản phẩm có doanh số cao và liên tục tăng qua các năm
Một sản phẩm hiệu quả vô cùng đặc biệt cho các căn hộ chung cư, hoàn toàn không còn lỗi lo về việc tắc nghẽn chậu rửa bát nên bảo vệ căn hộ chung tốt hơn, không còn phải lo về việc sửa chữa thấm dột nữa.
Sản phẩm này liên tục đứng đầu qua các năm và đạt thành tích tốt đối với chúng tôi, hàng ngàn khách hàng đã lựa chọn bể tách mỡ 3 ngăn để lắp đặt cho nhà hàng, gia đình, khách sạn, quán ăn…
2.3. Lưu ý khi sử dụng bể tách mỡ 2 ngăn
Là một sản phẩm đặc thù thì bạn phải chấp nhận một số yếu điểm của bể tách mỡ như sau:
+ Bể tách mỡ 2 ngăn bị làm giảm khả năng lọc tách mỡ xuống còn 60-70%. Thay vì 90% như các bể tách mỡ 3 ngăn 4 ngăn.
+ Không gian của bể bé hơn yêu cầu người dùng phải thường xuyên vệ sinh làm sạch bể tác mỡ 2 ngăn. Sao cho không gian làm việc của bể luôn ở trạng thái tốt nhất.
3. Hình ảnh sản phẩm bể tách mỡ 2 ngăn
Phần này giới thiệu một số hình ảnh sản phẩm bể tách mỡ 2 ngăn được gia công và chế tạo theo yêu cầu của khách hàng. Bể tách mỡ 2 ngăn là sản phẩm phổ biến nhất trong tất cả các phân khúc từ nhỏ cho đến lớn. Nhỏ thì có bể tách mỡ gia đình mà lớn thì có các sản phẩm như bể tách mỡ nhà hàng, quán ăn….
3.1. Bể tách mỡ gia đình 2 ngăn
3.2. Bể tách mỡ nhà hàng 2 ngăn
3.3. Bể tách mỡ công nghiệp 2 ngăn
Xem thêm: Danh mục các mẫu sản phẩm bể tách mỡ
4. Lưu ý khi sử dụng sản phẩm từ 2 ngăn
Đây là những kinh nghiệm mình rút ra được khi khách hàng của mình sử dụng sản phẩm và phản hồi về cho công ty. Mình xin tổng hợp lại một số yếu tố như sau.
+ Do độ bền chắc cao nên ở kích thước càng nhỏ thì độ chắc chắn càng lớn, không cần phải sử dụng thêm các thanh gia cố ở kích thước nhỏ
+ Nếu như lắp đặt bể tách mỡ kích thước lớn cần gia cố thêm.
+ Bề mặt nắp bể nếu có người đi lại trên bề mặt thì cần làm bằng inox nhám có độ dày cao hơn một chút.
+ Giá thành sản phẩm từ inox 304 có thể cao hơn inox 201 từ 20 – 30 %.
5. Hình thức đặt hàng gia công bể tách mỡ 2 ngăn
Quy trình của Bách Hóa Môi Trường luôn chủ động tư vấn cho quý khách hàng về chất lượng của inox 304. Nếu như đồng ý quý khách sẽ triển khai các bước tiếp theo
+ Thiết kế sản phẩm: Thống nhất kích thước bể, cấu tạo bên trong bể,
+ Thống nhất báo giá sản phẩm: Thống nhất về báo giá, tiến độ, phương án giao hàng lắp đặt sản phẩm…
+ Triển khai công việc và thanh toán.
Bách Hóa Môi Trường nhận gia công các sản phẩm bể tách mỡ bằng inox theo yêu cầu nên có thể đáp ứng nhu cầu của mọi quý khách hàng. Có nhu cầu vui lòng liên hệ với số hotline của chúng tôi.
Nguồn: Bách Hóa Inox



















daibq –
Bể tách mỡ 2 ngăn – Model BTM-2N – Bách Hóa Inox chỉ nên được sử dụng trong các trường hợp đặc biệt, những sản phẩm có kích thước nhỏ và độ hoạt động tách mỡ không cao. Chỉ đạt khoảng 60% thông thường và thường xuyên phải vệ sinh.