Bơm lọc bể bơi Waterco Hydrostar Plus là một sản phẩm của hãng thiết bị bể bơi Waterco – từ Úc. Được sản xuất với tiêu chuẩn riêng ở phân khúc cao cấp. Sản phẩm được nhập khẩu và phân phối trực tiếp tại thị trường Việt Nam bởi công ty chúng tôi.
Chi tiết sản phẩm như sau:
1. Đánh giá tổng quan cấu tạo bơm Hydrostar Plus
Thân máy bơm lọc được sản xuất bằng cách sử dụng công nghệ đúc nhựa thủy tinh kỹ thuật hiện đại với một nồi lọc mảnh.
Hydrostar Plus đã được thiết kế để cung cấp hoạt động yên tĩnh hơn đáng kể với lưu lượng dòng chảy cao hơn so với các mẫu bơm Hydrostar trước đó.
Waterco đã cải thiện hiệu suất thủy lực của máy bơm lọc với việc giới thiệu của một sợi dây bên trong.
Thiết kế thủy lực của bơm cung cấp dòng nước cân bằng tự nhiên và giảm nhiễu thủy lực.
2. Cấu tạo độc đáo của máy bơm lọc Hydrostar Plus
- Chống chịu thời tiết đạt tiêu chuẩn IP55, động cơ với trục thép không gỉ 431
- Cổng xả 4 ”có bích
- Nắp lọc polycarbonate trong suốt cho phép xem ngay bên trong giỏ lọc đã đầy rác hay chưa
- Giỏ lọc polypropylene đúc 16 lít – thể tích lớn để chứa rác.
- Cổng hút mặt bích 6 ”
- Vỏ bằng polypropylene bằng thủy tinh ổn định chống tia UV
- Cánh quạt Noryl bằng nhựa thủy tinh kèm theo cho độ bền lâu dài
- Cơ sở hỗ trợ tích hợp để dễ dàng lắp đặt
- Vòng khóa nắp với tay cầm tiện lợi dễ dàng tháo mở
- Phốt cơ khí cao cấp – Carbon /Graphite với thép không gỉ 316
Chi tiết sản phẩm xin thảm khảo catalog sản phẩm dưới đây.
3. VIDEO mô phỏng cấu tạo của Hydrostar Plus
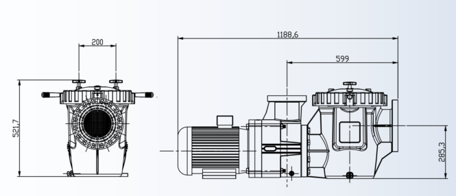
4. Bản vẽ thiết kế bơm Hydrostar Plus


5. Chức năng và ứng dụng thực tế
Là một sản phẩm đặc trưng mà bể bơi nào cũng cần có để giữ chất lượng nước trong bể bơi là tốt nhất.
Bơm không làm việc một mình mà đi kèm hệ thống lọc tinh, chức năng của máy bơm lọc lọc hydrostar là loại bỏ các loại rác thải kích thước lớn hơn 1 cm đi vào trong hệ thống bồn lọc. Rác thải lớn có thể là lá cây, tóc, cành cây, túi linong nhựa….
Chức năng thứ hai là bơm nước từ bể bơi vào hệ thống bồn lọc,
Nhờ có cấu tạo đặc biệt mà bơm lọc Hydrostar vừa có chức năng bơm vừa có chức năng lọc thô. Một sản phẩm hữu ích cho mọi loại bể bơi.
6. Đơn vị phân phối tại Việt Nam
Tại thị trường Việt Nam hiện nay chỉ có công ty chúng tôi được quyền nhập khẩu và phân phối chính hãng đối với các sản phẩm của hãng WATERCO. Để đạt được các thỏa thuận với hãng chúng tôi phải phải đáp ứng nhiều tiêu chuẩn về vốn, kỹ thuật, cơ sở hạ tầng…
Vì vậy, nếu hãy liên hệ với chúng tôi khi muốn mua sắm thiết bị bể bơi chính hãng ngoài bơm Hydrostar Plus.
Thông tin liên lạc
Công ty TNHH Thương mại Bách Hóa Môi Trường
- Làm việc tại trụ sở tại Hà Nội: Tầng 4, số 22, ngõ 139 Thiên Hiền, phường Mỹ Đình 1, Quận Nam Từ Liêm, Hà Nội.
- Chi nhánh Hải Phòng: Điện nước Tường Thịnh, 9/903 Trường Chinh – phường Quán Trữ- quận Kiến An – Hải Phòng
- Chi nhánh Đà Nẵng: Trần Đình Tri, Quận Liên Chiểu, thành phố Đà Nẵng.
- Chi nhánh Quảng Ninh: 555 Cao Thắng, Cửa hàng Gas Xuân Nghiêm Việt Hiền.
- Chi nhánh Hồ Chí Minh: 44 Hoàng Hữu Nam, Long Thạnh Mỹ, Quận 9, Thành phố Hồ Chí Minh.
- Số điện thoại của tôi: 0986.814.283
- Email: quangdaicm2@gmail.com
6. Chính sách bán hàng
Là một nhà cung cấp thiết bị bể bơi hãng WATERCO tại thị trường Việt Nam. Chính sách bán hàng của chúng tôi đối với từng hợp đồng cụ thể như sau:
Tổng thầu thiết kế – thi công – lắp đặt
- Đặt cọc 30%
- Thiết kế
- Thi công – nghiệm thu từng giai đoạn
- Nghiệm thu trang thiết bị tại kho – thanh toán 70%
- Lắp đặt hoàn thiện – nghiệm thu – thanh toán 30%
Cung cấp thiết bị
- Đặt cọc 30%
- Nghiệm thu thiết bị tại kho – Thanh toán 100%
- Vận chuyển
7. Hình thức mua hàng
Với nhiều kênh bán hàng khác nhau nhưng chúng tôi khuyến khích khách hàng có những trải nghiệm thực tế trước khi mua hàng.
Mua hàng trực tiếp
- Quý khách được tư vấn – trao đổi kỹ thuật tại văn phòng công ty
- Được tham quan các dự án thực tế đã triển khai
- Tận mắt thấy – tay sờ các trang thiết bị tại kho
Mua hàng online
- Liên hệ qua số hotline của công ty
- Nhận báo giá và trải nghiệm online qua các bài viết trên website và video trên Youtube
- Đặt hàng
8. Hình thức thanh toán
Trực tiếp thanh toán bằng tiền mặt hoặc chuyển khoản
9. Hình thức vận chuyển lắp đặt
- Đóng gói sản phẩm đúng tiêu chuẩn quốc tế
- Hỗ trợ vận chuyển đến tận chân công trình bằng xe tải chuyên dụng, có đội ngũ kỹ thuật đi theo để bàn giao trang thiết bị
- Lắp đặt theo yêu cầu của khách hàng và các bản thiết kế đã được thống nhất từ trước
- Hỗ trợ lắp đặt trong trường hợp khách hàng yêu cầu tự lắp.
- Tư vấn – hướng dẫn vận hành – chìa khóa trao tay cho người tiêu dùng một cách thuần thục nhất.
10. Hình thức chính sách bảo hành
Bảo hành 24 tháng đối với các sản phẩm chính hãng WATERCO do công ty cung cấp tại thị trường Việt Nam.
Bảo hành sản phẩm khi phát sinh lỗi tối đa 24h kể từ khi nhận được thông báo của khách hàng.
Bảo hành mọi lỗi do nhà cung cấp
Hỗ trợ bảo hành mọi lỗi do người sử dụng sai quy trình
Nguồn: buiquangdai.com















daibq –
Pump Code 2461250 – bơm lọc Hydrostar Plus đến từ thương hiệu Waterco – Úc đã chứng minh được chất lượng vượt trội hơn so với hãng khác. Chúng tôi hi vọng trong tương lai sẽ có càng nhiều người Việt Nam biết đến thương hiệu này.