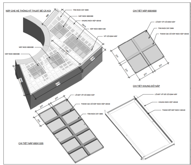
Đơn hàng nắp đậy inox hệ thống xử lý nước cho bể cá koi, đây là công trình lớn cần phải cân đối thực hiện gấp cho khách hàng ăn tết.
Thông số kỹ thuật
- Kích thước hộp: 40x40x1,5 mm
- Inox tấm dày 3 mm
Chi tiết mời anh em xem bản vẽ

CHI TIẾT NẮP CHE HỆ THỐNG KỸ THUẬT BỂ CÁ KOI
Nguồn: Bách Hóa Inox
