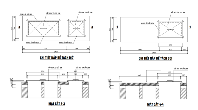
Bách Hóa inox xin chia sẻ bản vẽ nắp thăm bằng inox cho 2 bể tách sợi và bể tách mỡ được xây bằng gạch.

Bản vẽ nắp thăm bể tách mỡ và bể tách mỡ
Các bể này là bể xử lý sơ bộ cho hệ thống các bể xử lý nước thải cho nhà máy.
Thông số kỹ thuật như sau:
- Kích thước Dài x rộng x cao = 1210x764x50 mm
- Inox 304 dày 2 mm
- Tai inox T 50×100 mm
- Có tay cầm
- Có gioăng cao su ngăn mùi
Nguồn: Bách Hóa Inox
