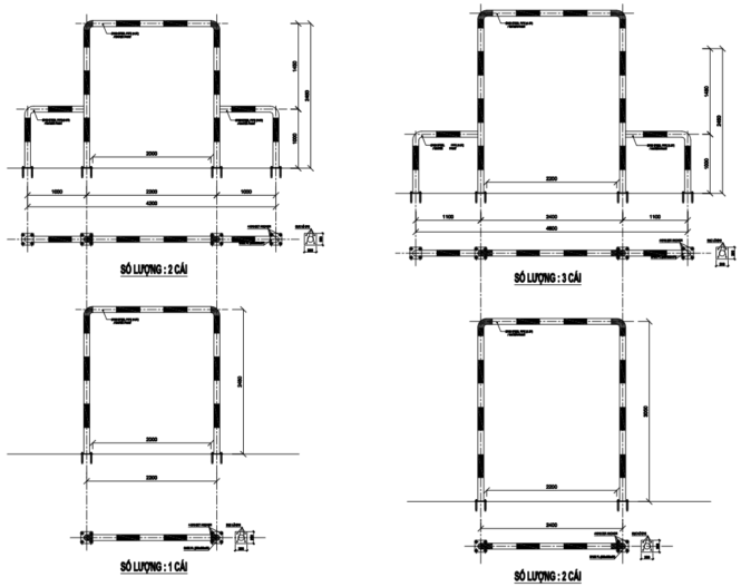
Bản vẽ trụ chắn – trụ Bollard cho khu công nghiệp

Bách hóa inox inox xin chia sẻ bản vẽ trụ chắn bằng théo cho 1 khung công nghiệp ở Hải Dương do bên công ty Hàn Quốc đặt hàng. Mời anh em cùng theo dõi nhé.

bản vẽ trụ chắn bollard bằng thép cho khu công nghiệp bản vẽ trụ chắn bollard bằng thép cho khu công nghiệp bản vẽ trụ chắn bollard bằng thép cho khu công nghiệp Bản vẽ trụ chắn – BOLLARD CỬA khu công nghiệp hải dương

Nguồn: Bách Hóa Inox

5/5 (1 Review)

Để lại một bình luận