Xin chào mọi người lại là Đại đây!
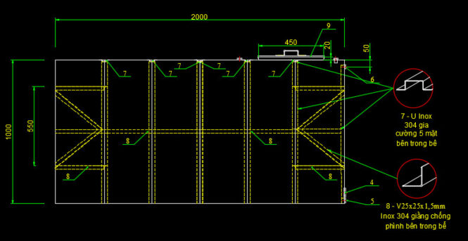
Hôm nay mình xin chia sẻ bản vẽ bể nước inox thể tích đạt 2500 lít cho anh khách hàng ở Vĩnh Phúc.
Bể có kích thước 2000x1250x1000 độ dày inox 1,2 mm
Bản vẽ bể nước 2500 lít file PDF

Nếu bạn có nhu cầu mua bể nước inox thể tích 2500 lít hãy liên hệ với chúng tôi để được hỗ trợ nhé
Nguồn: Bách Hóa Inox





