Chia sẻ bản vẽ giá treo ủng cao su 2,5 mét trong các nhà máy

Bách Hóa Inox xin chia sẻ bản vẽ giá treo ủng cao su dài 2,5 mét trong các nhà máy . Việc sử dụng ủng cao su trong các nhà máy đặc biệt là các nhà máy chế biến thực phẩm đã không còn quá xa lạ. 

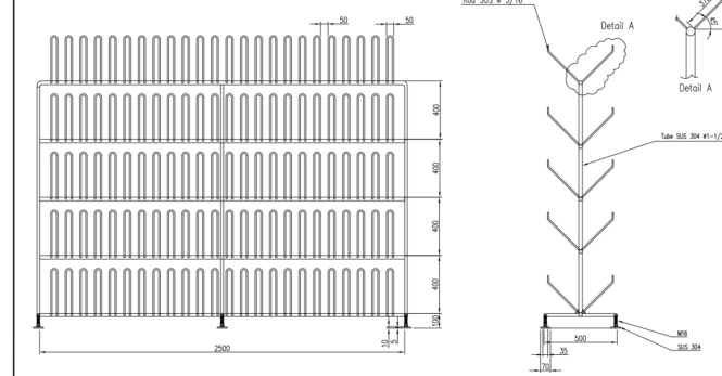
Cùng tìm hiểu về dòng sản phẩm này qua bản vẽ chi tiết cấu tạo của nó nhé.

Thông số kỹ thuật

  • Kích thước tổng: Dài x rộng x cao = 2500x500x2000 mm
  • Vật liệu chế tạo: Inox 304
  • Yêu cầu kỹ thuật: Các góc cạnh đẹp hàn kín đẹp

Cùng tìm hiểu chi tiết về dòng sản phẩm này nhé

Bản vẽ Giá treo ủng 2.5m file PDF

bản vẽ giá treo ủng inox 304

Nguồn: Bách Hóa Inox

 

90.000150.000
890.0001.640.000
400.000840.000
-17%
4.200.00022.500.000
-14%
90.000
1.700.0006.950.000
90.000150.000
5/5 (1 Review)

Trả lời