Nhân dịp một khách hàng đặt hàng chúng tôi sản xuất hệ thống bao gồm lò đốt và buồng hun khói để làm các món thịt gác bếp như thịt lợn thịt trâu gác bếp. Chúng tôi có lên ý tưởng và chia sẻ bản vẽ chi tiết này cho mọi người cùng tham khảo và góp ý, sao cho sản phẩm được hoàn thiện nhất khi đến tay những người tiêu dùng khác nhau.
Đầu bài của khách hàng
Khách hàng có gửi chúng tôi một video về hệ thống xông khói ở bên nước ngoài và yêu cầu chúng tôi làm thành 1 sản phẩm giống như thế để anh ấy làm ở Việt Nam với các món như thịt lợn hoặc thịt trâu gác bếp của anh ấy.
Chúng tôi ghi nhận đầu bài và đánh giá một số điểm như sau:
+ Hệ thống sử dụng hơi nóng và nhiệt độ trực tiếp từ bếp củi.
+ Quy mô hộ gia đình nên kích thước buồng hun khói không cần lớn lắm.
…
Trong quá trình trao đổi qua lại cũng phát sinh một số điểm như sau:
+ Nếu sử dụng trực tiếp ngọn lửa từ lò đốt thì đường ống mềm rất dễ hỏng do nhiệt độ cao. Vượt qua mức thông thường là 100-150 độ C. Khắc phục bằng cách làm đường ống dẫn khói bằng inox cao hơn 1 đoạn.
+ Lò đốt, đường ống dẫn khói, buồng hun nếu làm bằng 1 lớp inox sẽ rất nhanh mất nhiệt ra môi trường bên ngoài. Thậm chí gây bỏng nếu ko may tiếp xúc vào. Vì thế chúng tôi đề nghị làm bằng 1 vách ngăn 2 lớp có 1 lớp bảo ôn cách nhiệt. Điều này làm giảm các hiện tượng phân tán nhiệt ra ngoài môi trường.
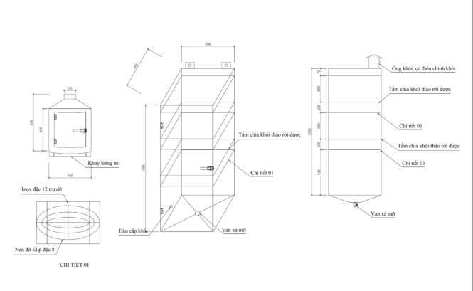
Cuối cùng cũng thống nhất được bản vẽ chi tiết về hệ thống sấy thịt khô như sau
Bản vẽ hệ thống sấy thịt lợn thịt bò khô bằng inox

Tải xuống – Bản vẽ tủ sấy thịt khô thịt xông khói file PDF
Bản vẽ hệ thống làm thịt xông khói tại nhà mới nhất

Bản vẽ mới nhất
Bản vẽ hệ thống xông khói thịt tại nhà
Mọi người cùng quan sát file ảnh này và làm theo hướng dẫn chi tiết nha.
Nguồn: Bách Hóa Inox








