Bách Hóa Inox xin chia sẻ bản vẽ chi tiết máy tách rác trống quay công suất 900 mét khối/ngày đêm phục vụ cho các nhà máy xử lý nước thải. Cùng tìm hiểu với chúng tôi nhé.
Thông số kỹ thuật
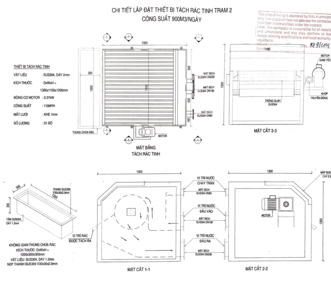
- Kích thước tổng: Dài x rộng x cao = 1300x1100x1200 mm
- Vật liệu chế tạo: Inox 304 dày 2 mm
- Động cơ mô tơ: 0,37 kW
- Công suất: 115 mét khối/giờ
- Mắt lưới: Khe 1 mm

Bản vẽ máy tách rác trống quay công suất 900 mét khối giờ file PDF
Nguồn: Bách Hóa Inox





