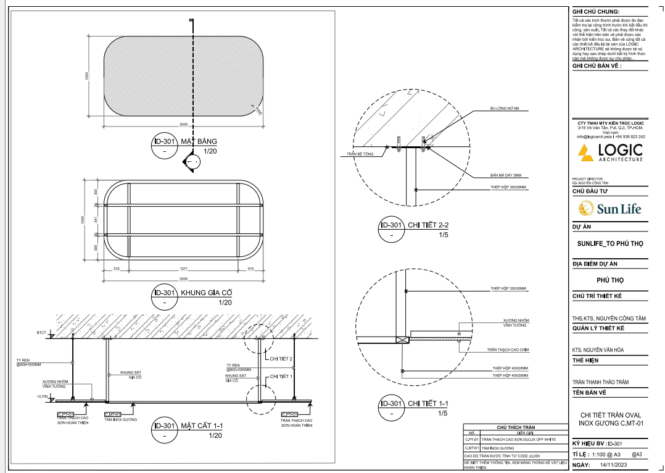
Bách Hóa inox nhận được đơn đặt hàng gia công chi tiết trần oval inox bóng gương thẩm mỹ theo yêu cầu. Sản phẩm dùng để trang trí có yêu cầu rất cao về bề mặt của sản phẩm.
File bản vẽ Trần ovanl inox bóng gương thẩm mỹ 
Thông số sản phẩm như sau:
- Dài x rộng x cao = 2000*1000*1000 mm
- Inox 304
- Hộp đỡ 30×30 mm
- Tấm bản mã dày 3 mm
- Phụ kiện: Bu lông nở M6
Nguồn: Bách Hóa Inox
