Bài viết này mình chia sẻ bản vẽ chi tiết cho hệ thống thoát nước sàn nhà, bao gồm máng nước inox, hố thu nước sàn, hố thu cuối, bẫy mỡ inox tất cả đều được đơn vị mình thi công, mời anh em tham khảo góp ý cho đơn vị mình nhé.
Mình chia làm 2 phần, phần số 1 là hình ảnh, phần số 2 mình để link file PDF anh em nào cẩn thì kéo xuống tải nhé.
PHẦN 1
Bàn vẽ Bẫy mỡ inox

Bản vẽ chi tiết máng thoát nước inox

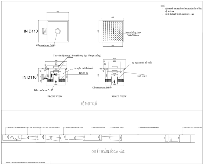
Bản vẽ hố thoát cuối inox

PHẦN 2: File PDF
Bản vẽ chi tiết bẫy mỡ và máng nước inox số 1
Bản vẽ máng nước và bẫy mỡ bằng inox số 2
Nguồn: Bách Hóa Inox






