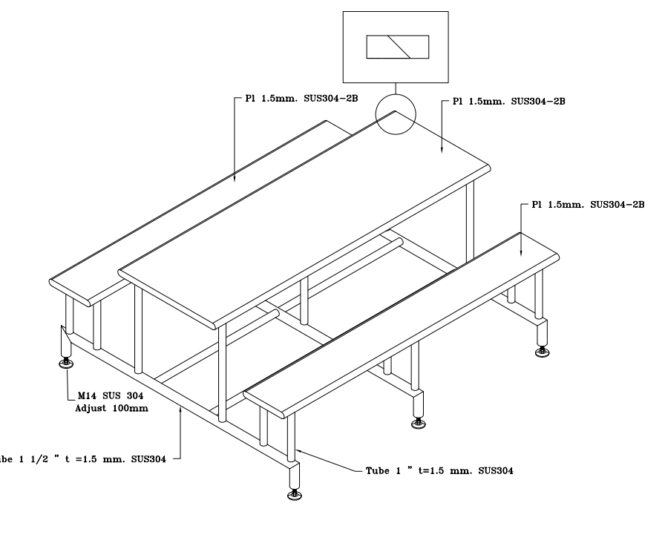
Bách Hóa Inox chia sẻ bản vẽ bàn ăn căng tin bằng inox 304 liên khối, sản phẩm chuyên dụng cho các nhà máy với số lượng công nhân làm việc lớn
Thông số kỹ thuật
- Kích thước tổng: Dài x rộng x cao = 2000x1710x950 mm
- Vật liệu: Inox 304 dày 1 mm
- Số ghế: 02
- Số bàn: 01
Bàn ăn căng tin liền khối là một sản phẩm công nghiệp đặc biệt bền vững nên được nhiều doanh nghiệp lựa chọn để lắp đặt cho các nhà ăn của anh em công nhân. Mọi người cùng tìm hiểu nhé.
Bản vẽ Bàn ăn căng tin liền khối inox 304

Nguồn: Bách Hóa Inox








