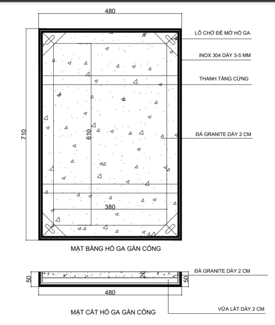
Bách Hóa Inox xin chia sẻ bản vẽ nắp đậy hố ga được làm inox 304 theo thiết kế đặc biệt.
Bình thường nắp bể nước, bể phốt hay các loại hố ga đều có hình vuông với các cạnh bằng nhau, nhưng với đơn hàng này, nắp hố ga được lại được thiết kế với hình chữ nhật.
Công ty chúng tôi thì có khả năng gia công theo yêu cầu nên có thể làm được
Thông số kỹ thuật chi tiết như sau:
- Dài x rộng x cao = 700x480x50 mm
- Vật liệu: Inox 304
- Độ dày vật liệu: 5 mm
- Có khả năng lát gạch phía trên
Xem chi tiết bản vẽ theo file đính kèm
Bản vẽ nắp đậy hố ga gần cổng bằng inox 304

Xem thêm: Tham khảo mẫu mã và kích thước phổ biến nhất của nắp bể inox
Nguồn: Bách Hóa Inox
