Gia công inox gọi
0399.766.655
No products in the cart.
Tổng hợp các loại bản vẽ các thiết bị inox được sản xuất bởi Bách Hóa Môi Trường
Bách hóa inox xin chia sẻ bản vẽ phối cảnh giá inox Dài x rộng...
Bách Hóa Inox xin chia sẻ bản vẽ minh họa tủ để tài liệu, tem...
Bách Hóa inox xin chia sẻ bản vẽ nắp thăm bể tự hoại tầng hầm...
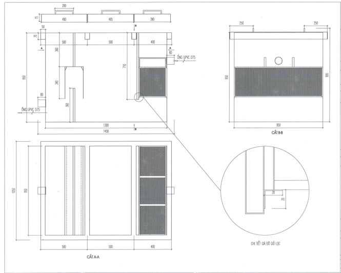
Bách hóa inox xin chia sẻ bản vẽ bể tách mỡ inox dài x rộng...
Bách Hóa Inox xin chia sẻ bản vẽ tấm nắp đan mạ kẽm nhúng nóng,...
Các dự án sử dụng khung inox để lắp đá granite tự nhiên cho các...
Bách hóa inox chia sẻ bản vẽ máng thu nước máy ép bùn khung bản...
Bách Hóa Inox chia sẻ bản vẽ chi tiết của máng răng cưa gờ tràn...
Bách Hóa Inox nhận được đơn hàng bể tách mỡ inox 950 lít cho bếp...
Bách Hóa Inox nhận được đơn đặt hàng gia công tấm đan inox theo yêu...
Bảng giá
Khuyến mãi
Tư vấn
Liên hệ
Lên đầu
Username or email address *
Password *
Remember me Log in
Lost your password?
Email address *
A password will be sent to your email address.
Register