Gia công inox gọi
0399.766.655
No products in the cart.
Tổng hợp các loại bản vẽ các thiết bị inox được sản xuất bởi Bách Hóa Môi Trường
Bách Hóa Inox chia sẻ bản vẽ trục cánh khuấy loại 2 cánh đường kính...
Chia sẻ bản vẽ tủ điện cho công ty Gentherm mời anh em cùng theo...
Đơn hàng nắp đậy inox hệ thống xử lý nước cho bể cá koi, đây...
Bách Hóa Inox xin chia sẻ bản vẽ phin pha cà phê inox phục vụ...
Bách Hóa Inox xin chia sẻ bản vẽ bể tách mỡ 4 ngăn có thiết...
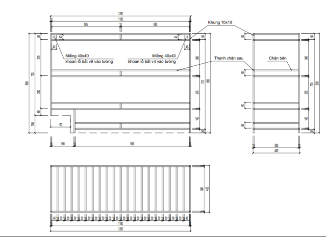
Bách hóa Inox xin chia sẻ bản vẽ chi tiết kệ inox dùng hộp 10×10...
Bách Hóa Inox xin chia sẻ bản vẽ khay inox đột lỗ 6 mm, kích...
Bách Hóa inox nhận được đơn đặt hàng gia công chi tiết trần oval inox...
Bách hóa inox xin chia sẻ bản vẽ chậu rửa inox 1 hố có lót...
Bách hóa inox xin chia sẻ bản vẽ inox 1 hố chậu chiều dài lên...
Bảng giá
Khuyến mãi
Tư vấn
Liên hệ
Lên đầu
Username or email address *
Password *
Remember me Log in
Lost your password?
Email address *
A password will be sent to your email address.
Register