Xin chào mọi người lại là Đại đây!
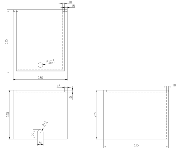
Hôm nay, mình chia sẻ với mọi người bản vẽ hộp vòi nước ở vườn bằng inox 304 mà khách hàng đặt bên mình gia công. Cùng tìm hiểu sản phẩm này nhé.
Sản phẩm này được thiết kế theo yêu cầu của khách hàng và được chuyển về Hà Nam
Bản vẽ Hộp vòi vườn inox 304 file PDF
Nguồn: Bách Hóa Inox








